Umbau Einfamilienhaus in Solothurn
Rosenweg 23, Solothurn SO
Die malerische Stadtvilla im Jugendstil aus dem Jahr 1910 war während seinen gesamten 114 Jahren in Familienbesitz.
In einer grösseren Umbauphase im Jahr 1970 wurde das Haus in zwei Wohneinheiten unterteilt.
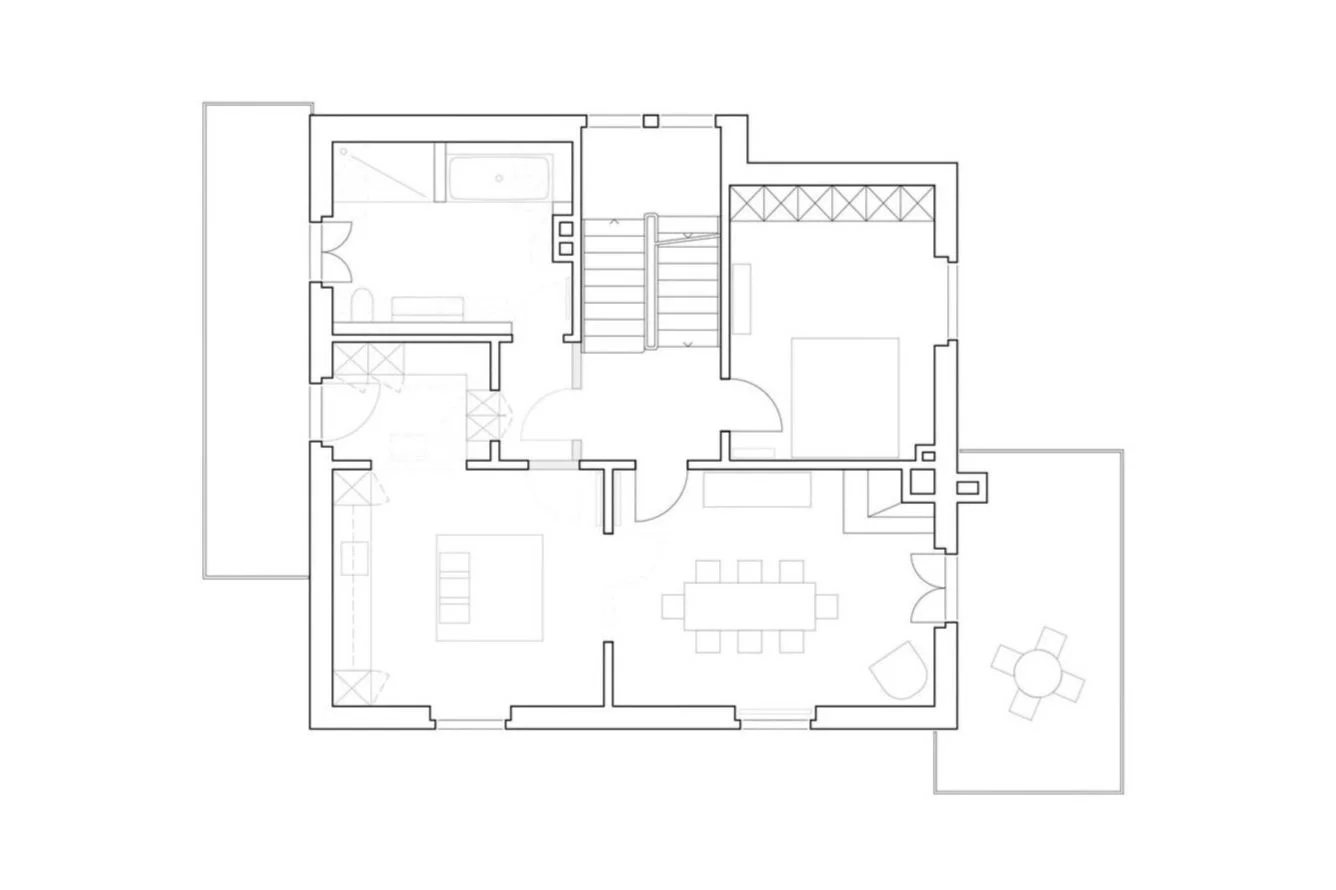
Das Atelier Kipfer wurde beauftragt, das Haus wieder in ein Einfamilienhaus zu verwandeln und den Innenausbau an die Bedürfnisse der neuen Eigentümerschaft anzupassen. Dazu wurde der erste Treppenlauf um 90° in die Ursprungsposition versetzt, um das zentrale Treppenhaus wieder herzustellen. Die Wohnräume im Erdgeschoss wurden in einer neuen Farbe frisch gestrichen. Die restlichen Räume im Erdgeschoss, wie zum Beispiel das Gäste-WC werden in einer zweiten Etappe saniert.
Im ersten Obergeschoss befindet sich neu eine grosszügige Wohnküche mit angrenzendem Essbereich. Die alte Küche wich dem neuen Bad für die fünfköpfige Familie.
Das Eltern- sowie die Kinderzimmer wurden frisch gestrichen. Überraschenderweise kam in den beiden Mansardenzimmern im Dachgeschoss unter einem abgenutzten Teppichboden ein Fischgratparkett aus Buche zum Vorschein. Dieser wurde vom Holzbauer mit grosser Sorgfalt aufbereitet und neu versiegelt.
Das Haus ist allseitig von einer beeindruckenden Vielfalt an Begrünung umschlossen und wurde von der neuen Eigentümerschaft durch einen neuen Sitzplatz und Hochbeete erweitert.
Auftraggeber
Privat
Leistung
Planung und Ausführung Umbau und Sanierung
Bauzeit
Mai 2024 - Juli 2024
Fotografie
Samuel Métraux Architektur GmbH
https://samuelmetraux.ch/
Grundriss - Erdgeschoss
Grundriss - 1. Obergeschoss

