Umbau Bauernhaus in Oensingen
Hohle Gasse 5, Oensingen SO
Der traditionelle Bauernhof mit Landwirschaftsteil im Zentrum von Oensingen soll in Zukunft wieder bewohnt und landwirtschaftlich betrieben werden. Das aktuell noch gepachtete Grundstück soll durch eine Abparzellierung der Landwirtschaftsfläche und der Gebäudeeinheit getrennt werden, damit der Gebäudeteil vom Pächter gekauft werden kann.
Nach diesem Prozess erfolgt die Sanierung des Wohngebäude. Mit Ausnahme der Dachsanierung und neuen Fenstern beschränkt sich die Sanierung auf die Innenräume.
Auftraggeber
Privat
Leistung
Bestandesaufnahme, Baugesuch Abparzellierung, Planung und Ausführung Sanierung
Bauzeit
Februar 2022 - September 2022
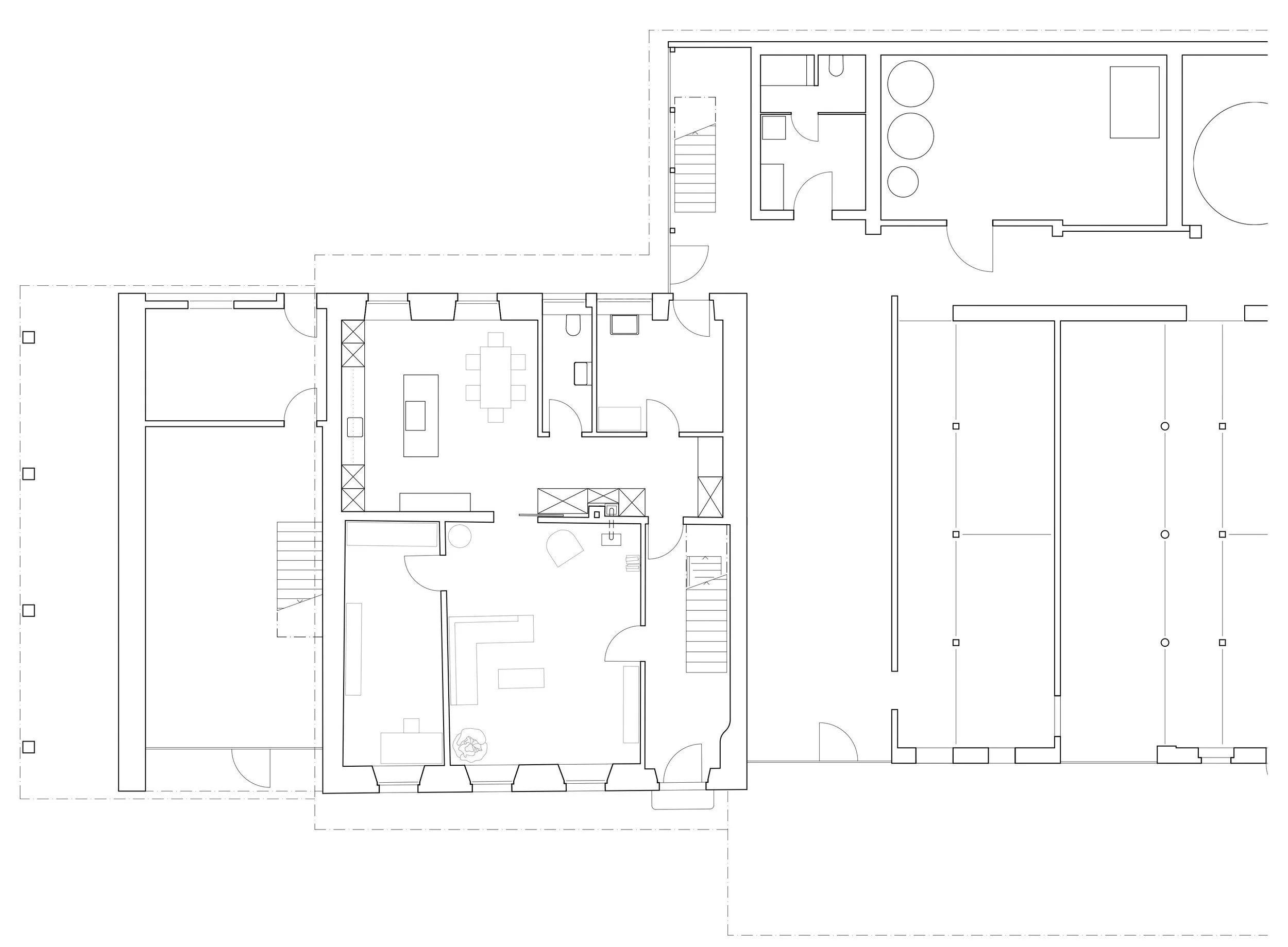
Grundriss - Erdgeschoss
Grundriss - 1. Obergeschoss

